Çalışma Takvimi: Haftaiçi 8:00 - 19:00

Telefon

0554 986 50 10

E-Posta

info@acarmimarlik.com

Adres

Orta, Alpaslan Sk. No:8/A D:41, Kartal/İstanbul

MENÜ

EVO PREFAB 85 – TEK KATLI HAFİF ÇELİK YAŞAM ÜNİTESİ

TASARIMDAN UYGULAMAYA, MİMARİDE GÜÇLÜ BİR İMZA

 

EVO PREFAB 85 – TEK KATLI HAFİF ÇELİK YAŞAM ÜNİTESİ

Proje Açıklaması

EvoPrefab 85, kompakt boyutları ve fonksiyonel plan kurgusuyla öne çıkan, tek katlı bir hafif çelik yaşam ünitesi modelidir. 85 m² brüt kullanım alanına sahip bu konut; pratik, ekonomik ve modern bir yaşam çözümü arayan kullanıcılar için geliştirilmiştir.

Gerek tek kişilik yaşam alanı, gerekse küçük aileler için ideal bir seçenek sunan EvoPrefab 85, aynı zamanda hızlı kurulum avantajı ve enerji verimliliğiyle öne çıkar. Hafif çelik konstrüksiyon sistemi, depreme karşı yüksek güvenlik sağlarken, uzun ömürlü ve dayanıklı bir yapı oluşturur.

Mimari Yaklaşım

EvoPrefab 85, sadelik, işlevsellik ve kompakt yaşam prensipleriyle tasarlanmıştır.

  • Açık plan düzeni, mekânların verimli kullanımını sağlar.

  • Geniş pencereler sayesinde doğal ışık iç mekâna hakimdir.

  • Bahçe bağlantısı ve veranda alanı, küçük metrekareye rağmen ferah bir kullanım sunar.

  • Modern cephe kaplamaları, estetik görünümü tamamlamaktadır.

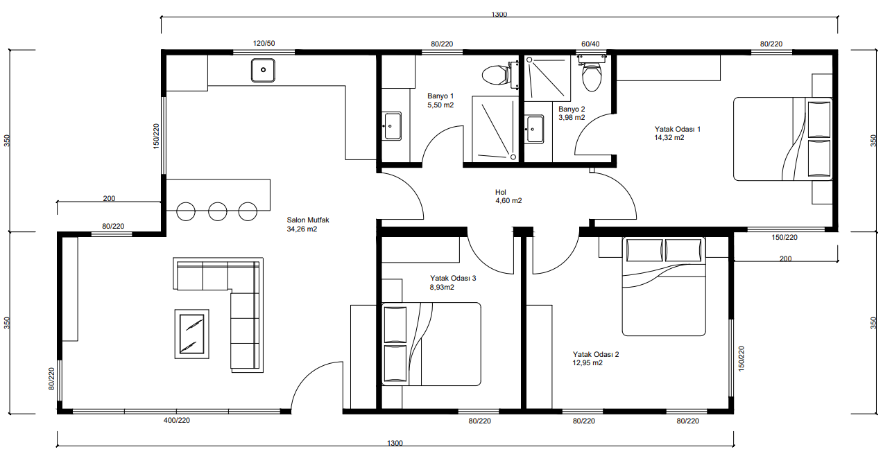
Plan Özeti

Toplam İnşaat Alanı: Yaklaşık 85 m² (Brüt)
Yapı Tipi: Tek Katlı Hafif Çelik Yaşam Ünitesi

İç Mekân Dağılımı:

  • Ferah salon (oturma ve yemek alanı birlikte)

  • Açık plan mutfak

  • 2 adet yatak odası

  • 1 adet banyo + WC

  • Giriş holü

  • Bahçeye açılan veranda

Öne Çıkan Özellikler

  • Kompakt Tasarım: 85 m²’lik kullanım alanıyla pratik ve ekonomik çözüm.

  • Hafif Çelik Konstrüksiyon: Depreme karşı yüksek dayanıklılık ve uzun ömür.

  • Fonksiyonel Planlama: Küçük aileler ve bireysel kullanıcılar için ideal yaşam alanı.

  • Enerji Verimliliği: Isı ve ses yalıtımında yüksek standartlar.

  • Hızlı ve Güvenli Kurulum: Kısa sürede tamamlanabilen modern yapı sistemi.

Detaylı bilgi için: EvoPrefab 85 – Evoprefabrik

TEKLİF & BİLGİ AL

Formu doldurun size en kısa sürede dönüş yapalım.