TASARIMDAN UYGULAMAYA, MİMARİDE GÜÇLÜ BİR İMZA
HIZLI LİNKLER
N-KATALOG
Evo Natura 190, doğayla iç içe, konforlu ve modern bir yaşam için tasarlanmış iki katlı hafif çelik villa modelidir. Doğal dokuyla uyumlu mimarisi, geniş yaşam alanları ve fonksiyonel plan kurgusu sayesinde hem aile yaşamına hem de yatırım amaçlı projelere uygun bir çözümdür.
Villanın tasarımında, ferahlık, doğal ışık kullanımı ve modern mimari çizgiler ön planda tutulmuştur. Hafif çelik konstrüksiyon sistemiyle inşa edilen yapı, depreme karşı yüksek dayanıklılık sağlarken aynı zamanda hızlı ve güvenli bir inşa süreci sunar.
Evo Natura 190, modern yaşam standartlarını doğanın huzuruyla birleştiren bir anlayışla tasarlanmıştır. Büyük cam yüzeylerle gün ışığı iç mekânlara taşınırken, bahçe ve geniş teras alanları kullanıcıya doğayla bütünleşen bir yaşam deneyimi sunar.
Toplam İnşaat Alanı: Yaklaşık 190 m² (Brüt)
Yapı Tipi: İki Katlı Hafif Çelik Yapı
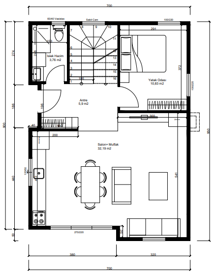
Zemin Kat:
Geniş salon (oturma ve yemek alanı bütünleşik)
Modern mutfak bölümü
1 adet yatak odası (misafir/ebeveyn kullanımı için)
1 adet banyo + WC
Depo/Teknik alan
Bahçeye açılan geniş veranda
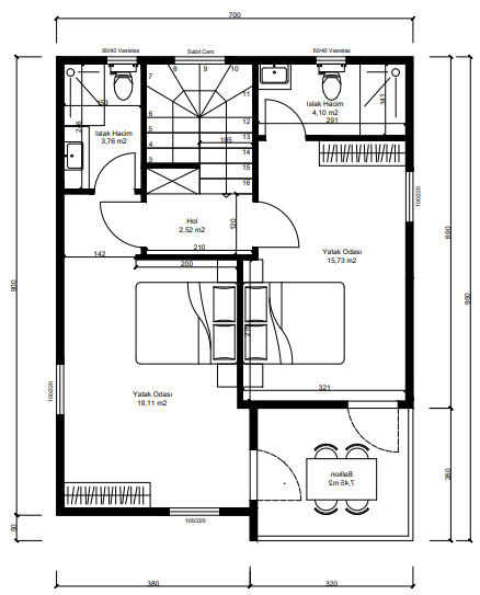
1. Kat:
3 adet yatak odası (1 ebeveyn banyolu suit)
1 adet ortak banyo + WC
Çamaşır odası
Geniş teras (bahçe manzaralı)
Hafif Çelik Konstrüksiyon: Depreme karşı yüksek mukavemet, uzun ömürlü yapı.
Modern Mimari: Düz çatı tasarımı ve geniş cam yüzeylerle ferah yaşam alanları.
Fonksiyonel Planlama: Açık mutfak, geniş salon ve çok amaçlı odalar.
Doğayla Uyum: Bahçe, veranda ve teras düzenlemeleriyle doğal yaşam deneyimi.
Enerji Verimliliği: Isı ve ses yalıtımında üst düzey standartlar.
Detaylı bilgi için: Evo Natura 190 – Evoprefabrik
Projeleriniz için en doğru çözümleri öğrenmek ister misiniz? Size özel bilgi ve teklif için buradayız.size yardımcı olalım.
Acar Mimarlık, estetik ve işlevselliği buluşturarak modern yaşam alanları tasarlar. Mimari vizyonumuz; güven, kalite ve sürdürülebilir çözümler üzerine kuruludur.
KURUMSAL MENÜ
HİZMETLER
Copyright © 2025 Acar Mimarlık Tüm Hakları Saklıdır
Formu doldurun size en kısa sürede dönüş yapalım.