TASARIMDAN UYGULAMAYA, MİMARİDE GÜÇLÜ BİR İMZA
HIZLI LİNKLER
N-KATALOG
Evo Natura 145, kompakt tasarımıyla öne çıkan, modern yaşamın ihtiyaçlarını karşılayan iki katlı hafif çelik konut modelidir. 145 m²’lik brüt kullanım alanına sahip villa, fonksiyonel plan kurgusu ve estetik mimarisiyle hem küçük aileler hem de yatırım amaçlı projeler için ideal bir seçenektir.
Proje; doğa ile uyumlu mimari, ferah yaşam alanları ve yüksek deprem güvenliği prensipleri doğrultusunda geliştirilmiştir. Hafif çelik yapı teknolojisi sayesinde hızlı ve güvenli inşa süreci sunarken, uzun ömürlü ve enerji verimli bir konut alternatifi oluşturur.
Evo Natura 145, minimalist tasarım anlayışı ile işlevselliği bir araya getirmektedir. Büyük cam yüzeyler sayesinde iç mekânlara doğal ışık hâkim kılınmış, açık plan düzeniyle ferah ve kullanışlı yaşam alanları elde edilmiştir.
Dış cephede sade modern çizgiler, doğal tonlarda kaplamalar ve kompakt form öne çıkarılmış; böylece hem şehir merkezinde hem de doğa içinde konumlandırılabilecek esnek bir konut çözümü geliştirilmiştir.
Toplam İnşaat Alanı: Yaklaşık 145 m² (Brüt)
Yapı Tipi: İki Katlı Hafif Çelik Konut
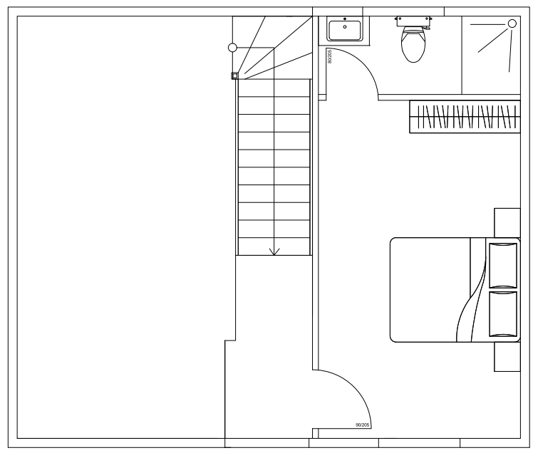
Zemin Kat:
Açık plan salon (mutfak ve yemek alanı ile entegre)
1 adet banyo + WC
Depo/teknik alan
Giriş holü
Bahçeye açılan veranda
1. Kat:
3 adet yatak odası (1 ebeveyn banyolu suit)
1 adet ortak banyo + WC
Balkon / teras alanı
Kompakt ve Fonksiyonel Tasarım: Küçük ailelere uygun, pratik yaşam alanları.
Hafif Çelik Konstrüksiyon: Depreme karşı yüksek dayanıklılık ve güvenli inşa süreci.
Modern Cephe: Sade ve doğal tonlarda kaplama malzemeleri.
Enerji Verimliliği: Isı ve ses yalıtımında üst düzey performans.
Doğa ile Uyum: Veranda, balkon ve bahçe bağlantılarıyla bütünleşen yaşam deneyimi.
Detaylı bilgi için: Evo Natura 145 – Evoprefabrik
Projeleriniz için en doğru çözümleri öğrenmek ister misiniz? Size özel bilgi ve teklif için buradayız.size yardımcı olalım.
Acar Mimarlık, estetik ve işlevselliği buluşturarak modern yaşam alanları tasarlar. Mimari vizyonumuz; güven, kalite ve sürdürülebilir çözümler üzerine kuruludur.
KURUMSAL MENÜ
HİZMETLER
Copyright © 2025 Acar Mimarlık Tüm Hakları Saklıdır
Formu doldurun size en kısa sürede dönüş yapalım.