Çalışma Takvimi: Haftaiçi 8:00 - 19:00

Telefon

0554 986 50 10

E-Posta

info@acarmimarlik.com

Adres

Orta, Alpaslan Sk. No:8/A D:41, Kartal/İstanbul

MENÜ

EVO GARDEN 195 – İKİ KATLI HAVUZLU HAFİF ÇELİK VİLLA

TASARIMDAN UYGULAMAYA, MİMARİDE GÜÇLÜ BİR İMZA

 

EVO GARDEN 195 – İKİ KATLI HAVUZLU HAFİF ÇELİK VİLLA

Proje Açıklaması

Evo Garden 195, doğanın ortasında huzurlu bir yaşam sunmak amacıyla tasarlanmış, modern mimariye sahip iki katlı bir hafif çelik villa modelidir. Açık plan kurgusu, geniş yaşam alanları ve havuz odaklı düzeniyle hem kalıcı konut hem de yazlık yaşam için ideal bir çözümdür.

Villanın tasarımında, kullanıcıların konforunu ve doğayla bütünleşik bir yaşam deneyimini öne çıkaran modern çizgiler tercih edilmiştir. Hafif çelik konstrüksiyon sistemi, depreme karşı yüksek dayanıklılık sağlarken hızlı ve güvenli inşa imkânı sunmaktadır.

Mimari Yaklaşım

Projenin merkezinde işlevsellik, ferahlık ve doğal çevreyle uyum yer almaktadır. Büyük cam yüzeyler ile mekânlara doğal ışık maksimum seviyede taşınmış, bahçe ve havuzla bütünleşen geniş teras ve veranda çözümleriyle doğayla iç içe bir yaşam kurgulanmıştır.

Plan Özeti

Toplam İnşaat Alanı: Yaklaşık 195 m² (Brüt)
Yapı Tipi: İki Katlı Hafif Çelik Yapı

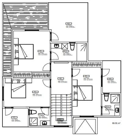
Zemin Kat (≈ 98,55 m²):

  • Ferah salon (açık mutfak ve yemek alanı ile bütünleşik)

  • Modern mutfak bölümü

  • 1 adet yatak odası (misafir/ebeveyn kullanımı için uygun)

  • 1 adet banyo + WC

  • Geniş giriş holü

  • Depo / teknik alan

  • Havuz manzaralı geniş veranda

1. Kat (≈ 96,45 m²):

  • 3 adet yatak odası (1 ebeveyn banyolu suit)

  • 1 adet ortak banyo + WC

  • 1 adet çamaşır odası

  • Havuz ve bahçe manzaralı geniş üst teras

Öne Çıkan Özellikler

  • Hafif Çelik Konstrüksiyon: Depreme karşı yüksek mukavemet ve uzun ömür.

  • Modern Mimari: Düz çatı ve geniş cam yüzeylerle ferah yaşam alanları.

  • Açık Plan Yaşam: Salon ve mutfağın entegre kullanımıyla işlevsel çözümler.

  • Doğayla Bütünleşen Mekânlar: Bahçe, veranda ve havuz alanı ile uyumlu yaşam.

  • Enerji Verimliliği: Isı ve ses yalıtımında yüksek standartlar.


Detaylı bilgi için: Evo Garden 195 – Evoprefabrik

TEKLİF & BİLGİ AL

Formu doldurun size en kısa sürede dönüş yapalım.